日期:
來源:zx123.cn收集編輯:admin
小戶型怎么裝修呢,最重要的大概就是空間分布問題了吧。但你接下來看了小編介紹的這個客廳、餐廳、臥室、衛生間、廚房一應俱全的八平米小戶型裝修,你會發現,小戶型裝修空間什么的,那都不叫事兒。很多朋友大概要認為我是在吹牛了,是不是吹牛,我們下面揭分曉。

小戶型怎么裝修:八平米小戶型
八平米的空間有多大?這么說吧,一個普通家居中,一個八平米的臥室都會覺得太小了,按地磚來算,按普通八公分的地磚為標準,八平米就差不多十二三塊瓷磚左右!但是這個設計卻完全突破了空間的約束,將8平米空間愣是打造出了一室一廳一廚一衛!下面整體展示一下。

空間整體效果
三維立體圖,基本的結構我們都可以看得清清楚楚。
室內效果
看起來就像是個大衣柜對嗎,在普通家居中,這也基本就是衣柜的位置。
臥室
衣柜,哦不是,家居的最上層靠墻就是臥室,一張小小的床,被保護的很好。深夜入睡。我們把“門”帶上,就可以遮住光亮,不過想想那個露一個頭在外面的景象還是蠻驚悚的……加上一層簾子應該不錯。
臥室梯子(儲物)
臥室太高上不去?沒事,十幾年的校園生活,會告訴你,上下鋪的魅力是不可忽視的,而且這里的梯子也做成了儲物,雙倍魅力。
小戶型餐廳
恩,餐廳藏在這里,居然還連帶餐凳,不得不說,空間計劃的剛剛好啊。
衣柜、儲物柜
在餐廳和臥室臺階之間以及餐廳上面就是衣柜和儲物柜了,人多了可能不好處理,但一個人的話,這些儲物空間基本算夠了。除非你是購物狂。
廚房
廚房是開放式的,因為工作的原因,其實在家煮飯的時間并不多,并不是很影響。
衛生間門
衛生間在這里了,先看一個門。
儲物柜、衛生間
其實小編一直在想,這點儲物柜空間放書,小編的書怎么可能放的下,但是如果把下面的凈水器去掉應該剛剛好,根據自己需求吧。


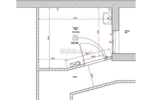
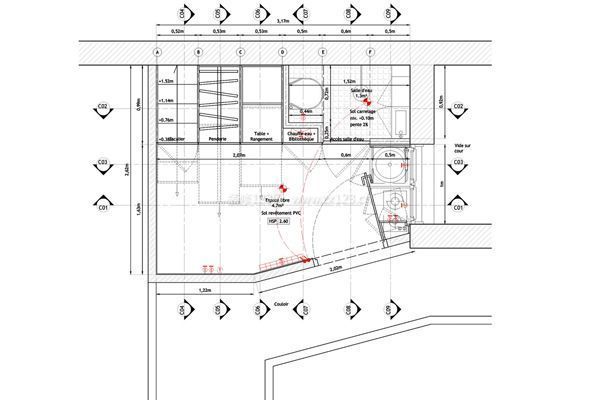
戶型圖
好吧,再一次強調它八平米左右的空間,這里是戶型圖,可以詳細看看怎么設計的。
小戶型怎么裝修:小戶型裝修技巧
①輕裝修
在有限的空間和預算下,減少一些不必要的裝飾效果,以實用方便為主要目的進行裝飾設計,小空間減少了固定笨重的裝修,空間被挪出來了,人才能活得自在。
②別致設計突破局限
誠如這個八平米的一居室,突破空間局限,才能有更方便的設計。我們從這個八平米的家感覺不到任何擁擠,或者是局促,一切都井然有序。
③色彩簡單
太過繁復的色彩對于小戶型來說,基本是不可取的,如果再加上并不是很好的設計,那簡直就是雪上加霜。簡單的淺暖色能夠除了不讓空間顯得擁擠外,還能起到“放大空間”的作用。
不知道小編今天介紹的這個八平米小戶型是否是你所喜歡的呢?如果你對你家小戶型還不知該怎么設計裝修的話,不妨來小戶型效果圖版塊找找靈感吧。

八平米的空間有多大?這么說吧,一個普通家居中,一個八平米的臥室都會覺得太小了,按地磚來算,按普通八公分的地磚為標準,八平米就差不多十二三塊瓷磚左右!但是這個設計卻完全突破了空間的約束,將8平米空間愣是打造出了一室一廳一廚一衛!下面整體展示一下。

三維立體圖,基本的結構我們都可以看得清清楚楚。
看起來就像是個大衣柜對嗎,在普通家居中,這也基本就是衣柜的位置。
衣柜,哦不是,家居的最上層靠墻就是臥室,一張小小的床,被保護的很好。深夜入睡。我們把“門”帶上,就可以遮住光亮,不過想想那個露一個頭在外面的景象還是蠻驚悚的……加上一層簾子應該不錯。
臥室太高上不去?沒事,十幾年的校園生活,會告訴你,上下鋪的魅力是不可忽視的,而且這里的梯子也做成了儲物,雙倍魅力。
恩,餐廳藏在這里,居然還連帶餐凳,不得不說,空間計劃的剛剛好啊。
在餐廳和臥室臺階之間以及餐廳上面就是衣柜和儲物柜了,人多了可能不好處理,但一個人的話,這些儲物空間基本算夠了。除非你是購物狂。
廚房是開放式的,因為工作的原因,其實在家煮飯的時間并不多,并不是很影響。
衛生間在這里了,先看一個門。
其實小編一直在想,這點儲物柜空間放書,小編的書怎么可能放的下,但是如果把下面的凈水器去掉應該剛剛好,根據自己需求吧。


好吧,再一次強調它八平米左右的空間,這里是戶型圖,可以詳細看看怎么設計的。
小戶型怎么裝修:小戶型裝修技巧
①輕裝修
在有限的空間和預算下,減少一些不必要的裝飾效果,以實用方便為主要目的進行裝飾設計,小空間減少了固定笨重的裝修,空間被挪出來了,人才能活得自在。
②別致設計突破局限
誠如這個八平米的一居室,突破空間局限,才能有更方便的設計。我們從這個八平米的家感覺不到任何擁擠,或者是局促,一切都井然有序。
③色彩簡單
太過繁復的色彩對于小戶型來說,基本是不可取的,如果再加上并不是很好的設計,那簡直就是雪上加霜。簡單的淺暖色能夠除了不讓空間顯得擁擠外,還能起到“放大空間”的作用。
不知道小編今天介紹的這個八平米小戶型是否是你所喜歡的呢?如果你對你家小戶型還不知該怎么設計裝修的話,不妨來小戶型效果圖版塊找找靈感吧。
【更多資訊】
※ 臥室窗簾選擇搭配 ※
90平米裝修預算 ※
歐式風格設計理念 ※
毛坯房裝修步驟 ※
臥室顏色禁忌 ※
小戶型裝修技巧 ※
※ 田園風格家具品牌 ※
80平米裝修預算 ※
新房裝修注意事項 ※
主臥室設計技巧 ※
兒童臥室顏色 ※
怎樣裝修最省錢 ※