北大資源紫境府位于成都高新區新川板塊,占地約124畝,整體定位為純改善項目,一共分為三個地塊開發,目前已先后兩次推出1182套房源,其中一期662套的全清水房源已于2021年三月交房,剩余的520套二期房源絕大部分為精裝修,僅躍層戶型為清水,預計2021年12月左右交付。

北大資源紫境府作為北大資源TOP級“紫境系”壹號作品,項目攜手全球頂尖建筑設計事務所美國KLP.凱勒建筑設計、知名景觀設計團隊L;A上海奧雅景觀設計、全球知名空間設計團隊香港TCDL.陳建中設計團隊和上海高迪建筑設計團隊四大國際團隊,以國際水準的設計水平與建筑技藝,秉持“中魂西技”的設計理念,營造出“精、雅、尊”的品質意境。

項目共有三個地塊,從西向東分別為一、二、三號地塊,每個地塊之間都被道路分割,每個地塊都單獨劃分為一個小的組團,每個組團均為圍合式布局,中庭設置一棟樓王,同時搭配少量疊拼房源,是很典型的高低配大圍合設計。配合點式獨棟的錯位布局,塑造出最大化的中庭景觀空間,約100-260米大樓間距在全國也難得一見。在布局上,則以南北向為基礎,進行適當的角度偏轉,實現戶戶無遮擋,均朝向核心景觀,布局靈動自然,采光通風俱佳。

此外,北大資源紫境府的價值除了體現在區位地段,產品本身也不錯,紫境府外立面視覺上最核心的部分是大面積的玻璃落地門窗,通風采光觀景均是一流,局部采用了石材,并干掛到頂,大大提升了外立面的質感和檔次,而上下層之間的部分,紫境府選用了撞色的鋁板作為線條點綴,整體上簡潔、現代、大氣,質感突出。采用這三種材質和設計的住宅外立面,在成都當前的市場上應該是絕無僅有的,因此,可以說,在外立面等產品要素上,紫境府具有一定的市場領先性,甚至接近于頂級豪宅的水平。

項目以兩梯兩戶的純板式設計為主,產品面積區間為建面約116-249㎡,保證小區居住品質。同時,為了實現景觀資源的最大化,設計團隊對產品進行深度挖掘,開窗占比最大化設計,實現約85%的開窗率,同時每戶均有大景觀陽臺。
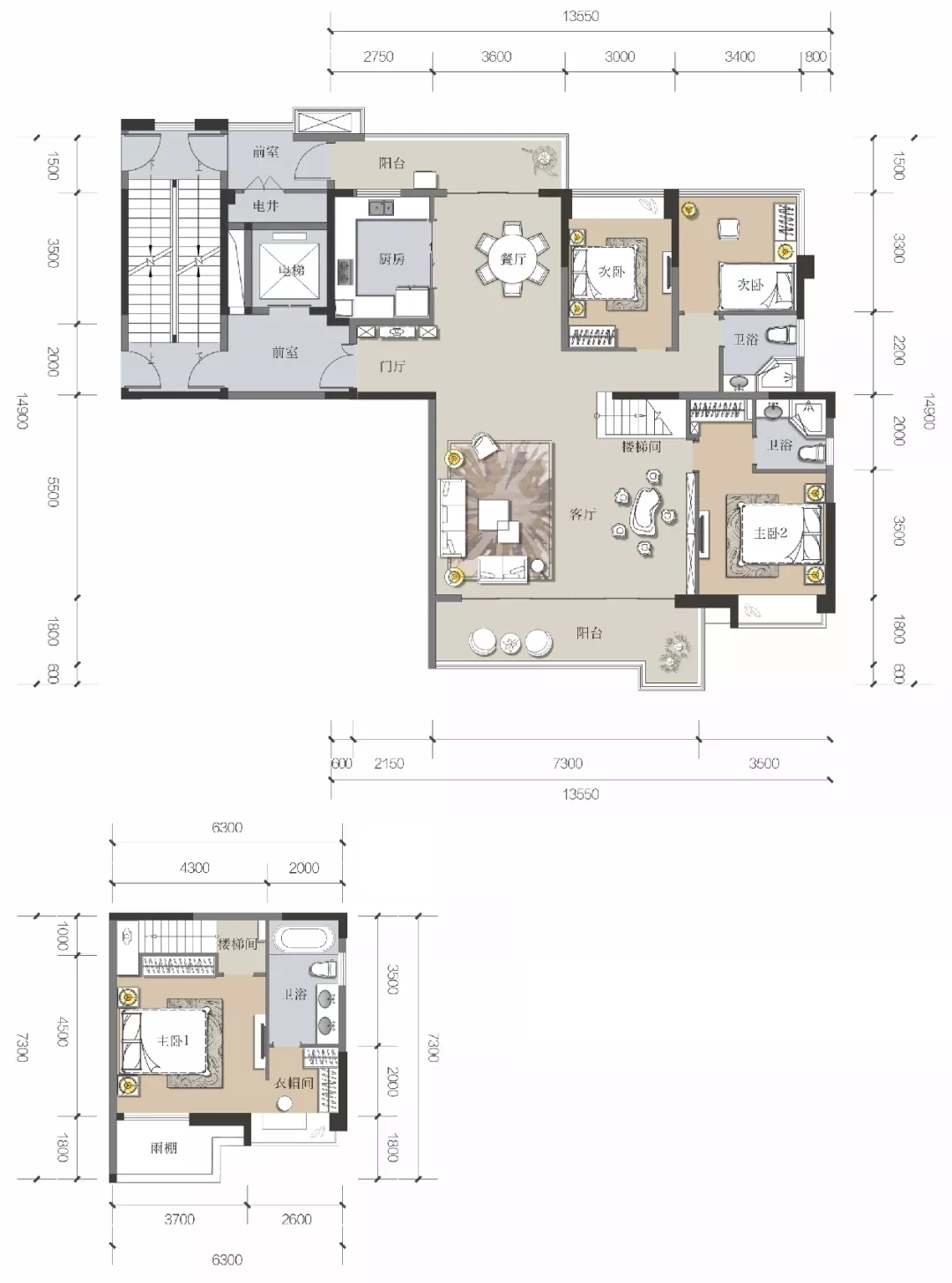
北大資源紫境府清水房源戶型圖分析
項目的清水房源主要分布在1號地塊的5#、6#、7#、11#,2號地塊的2#、3#、4#、5#、6#、9#,以及3號地塊的4#,5#,戶型建面為116-249平。
(1)A1戶型:116平三室兩廳兩衛

該戶型是紫境府項目面積最小的一個戶型,傳統的豎廳設計中規中矩,7米的大陽臺連通客廳與書房,以及沒有小于10平米的臥室,對于剛需、首改來講整體功能性和舒適度是滿足的,遺憾的是116戶型均是朝外臨路口,無中庭觀景。
(2)A2戶型:141平四室兩廳兩衛

該戶型采用橫廳設計,餐廳加客廳整體有32平,陽臺為7*1.8,公共區域尺度較大。但對于改善,尤其紫境府自身定位為豪宅類的產品,實際上141平做4房的設計在目前的市面上優勢并不明顯。但主臥約26平,且主衛配備有浴缸,保證了主要房間的舒適性,且每個次臥都配置有飄窗。
(3)B戶型:182平躍層四居(偶數層)

該戶型最突出的優勢是贈送面積大,不計產權的面積達到了53平方米,單層的層高空間也有3.15米。此外就是開間大,主景觀面的開間達到了7.3米,做到了兩面通風采光,雙陽臺的設計,保證了通風、采光和觀景的良好。加上兩個套房一共有超過14米的中庭景觀面;主臥面積較大,并且還配備衣帽間,讓主人盡享奢華;雙套房設計,三代同堂也非常舒適。
(4)B戶型:184平躍層四居(奇數層)

184平的套四三衛躍層戶型是比較特殊的,兩個大陽臺,生活陽臺超過9平米,客廳觀景陽臺超過13平米,整個屋內的通透性非常好,餐廳和廚房的采光也很好;樓下是三室兩衛的格局,動靜分局;躍層樓上是私密的豪華主臥。
(5)E戶型:249平六室兩廳四衛(帶保姆間)

249平的戶型采用橫廳的設計,客廳加陽臺有六十多平,并且客廳擁有超過15米的270度轉角的陽臺和玻璃幕墻的設計,采光面全看中庭,雙套房雙主臥設計,兩個套房都有明衛和衣帽間,且都朝南;動靜與干濕分區,居住舒適度高;保姆房與主人房分離,保留主人的私人空間。主臥套房開間做到了4.5米,尺度感不錯;次主臥套房開間3.5米,比較局促;剩余的三個空間,兩個臥室開間為3.3米和3.8米,書房開間2.7米。從功能上看,房間夠多;從空間上看,尺度不錯。
提前考察,備戰家居裝修
純躍層戶型在成都房產市場越來越稀少,作為高端改善住宅的代表,不僅僅是用來居住,更是對生活品質,社會地位,財富的體現,所以在高端定制裝修風格上更看重裝修的文化藝術性,將單純的功能型產品向文化藝術型產品轉變,是高端家裝的精髓所在,創造出更優雅的、有文化涵養的室內環境。
今天的裝修,質量應該是最基本的要求,而在質量之上適合你的裝修,才真正關乎到你的生活品質。

另外,對于期房業主來說,最怕的遇到就是房子質量有所缺陷,而自己又不懂。提前鎖定心儀的裝修公司,可以讓設計師免費陪你去驗房,輕輕松松解決驗房難題。驗房的同時,還可以量房,解析戶型,何樂而不為呢。
再者術業有專攻,裝修這件事兒,還是設計師更懂!提前考察,更有足夠多的時間慢慢與設計師進行溝通,把裝修方案的細節一步步全部完善。
如果房子拿到手后才去看裝修,入住的時間就要推后了;匆匆忙忙定的裝修,也不放心。因此,提前花3~6個月的時間,用來了解考察裝修,根據自己的預算和需求選擇一個更適合的口碑好、工藝好、性價比高、價格透明的裝修公司,才是明智的選擇!
視覺家作為家裝行業的上市家裝品牌,一直以先進、時尚、向上的生活方式為核心做家裝。同時成都視覺家的設計團隊也針對北辰南湖香麓的疊拼戶型做了許多成熟的設計方案,另外還推出了專屬的裝修優惠政策,優惠詳情,請點擊下方按鈕預約或在線咨詢咱們的家裝顧問。
免費獲取北大資源紫境府裝修報價