日期:
來源:購房網收集編輯:admin
武侯金茂府建面多大,都有什么戶型?樓間距一般是指兩棟樓之間的前后、左右間距,對于采光來說有很大的影響。武侯金茂府建筑面積270000㎡。
選擇房子是個難題,往往擔心各種問題,一會擔心采光、一會擔心噪音、一會又擔心出行武侯金茂府社區配套社區活動中心,社區停車場,活動中心,規劃面積108000㎡,供暖方式自采暖。
建筑因生活而體現價值,生活因建筑變得更加美好。武侯金茂府房屋類型住宅,周邊教育成都市金花中學、哈佛之星美式幼稚園(置信麗都園),戶型有3室-5室

C-245㎡戶型(3室2廳,245平,南北)

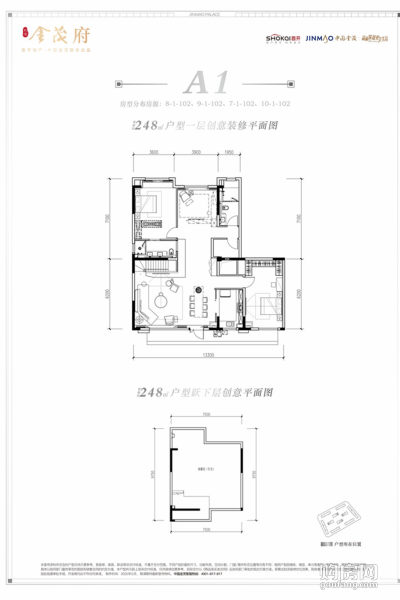
A1-248㎡戶型(3室3廳,248平,南北)

B-255㎡戶型(3室2廳,255平,南北)
尊貴安居的生活,浪漫的溫馨家園武侯金茂府醫院武侯區第三人民醫院、武侯區第五人民醫院、四川現代醫院(武侯院區)、米諾娃婦女兒童醫院、武侯區簇錦社區衛生服務中心,戶型為212平-305平,樓座信息樓棟數:36

C-245㎡戶型(3室2廳,245平,南北)

A1-248㎡戶型(3室3廳,248平,南北)

B-255㎡戶型(3室2廳,255平,南北)